WERKSTATT

WERKSTATT

Kreiere etwas Besonderes.

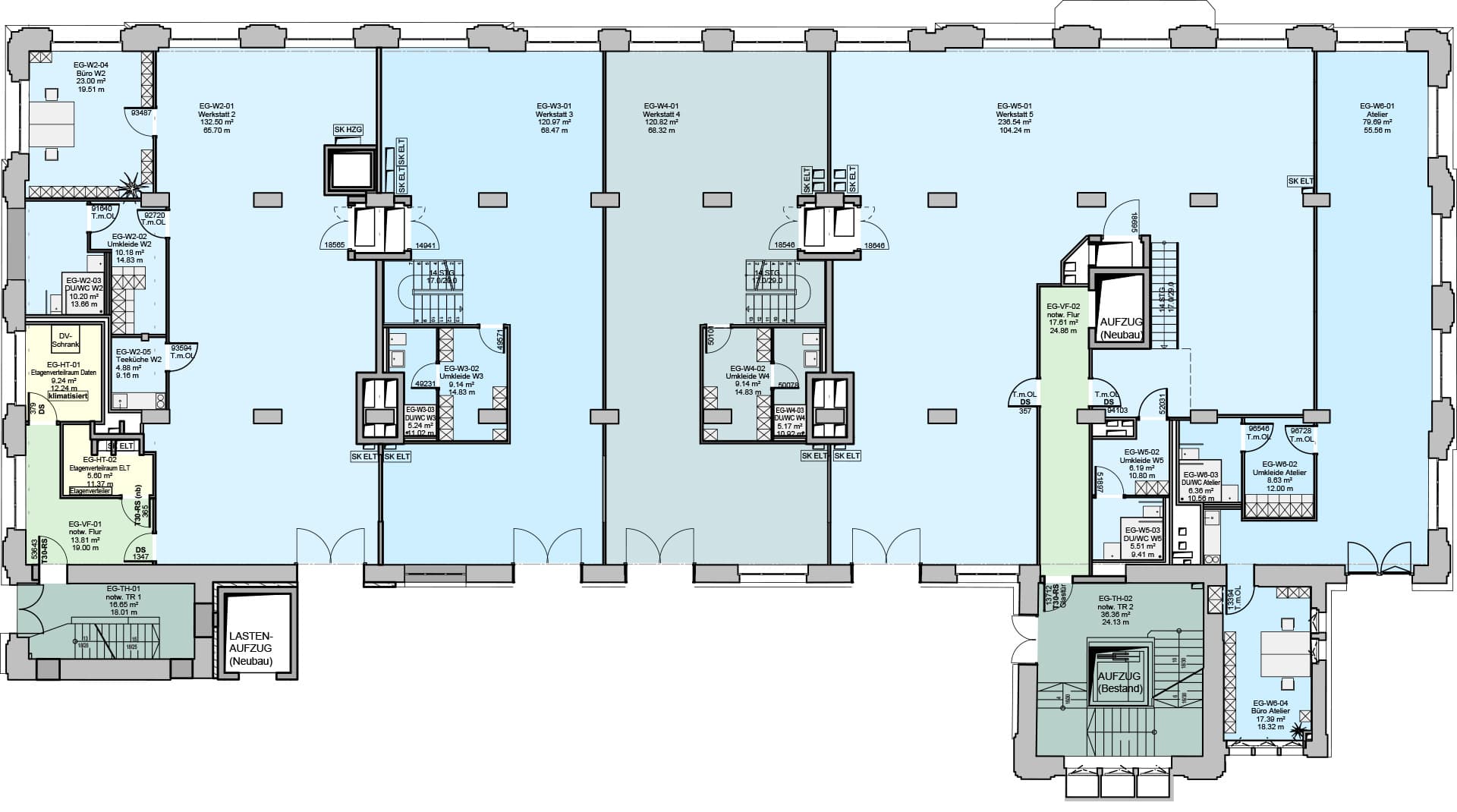
Zwei Etagen mit über 1500 m² Nutzfläche werden als Werkstätten für produzierende und handwerklich orientierte Unternehmen bzw. Start-ups vorbereitet.

Industrieböden, Starkstromanschlüsse, Meisterbüros, Umkleiden, Duschen, Teeküchen, Lüftungsanlagen, große Fenster und entsprechende Raumhöhen wurden als Grundlage berücksichtigt.

Vereinfachte Darstellung des Grundrisses einer Werkstattetage

Unsere verfügbaren Mietangebote

Buntspeicher Logo

BUNTSPEICHER ZWÖNITZ
Speicherstraße 1
08297 Zwönitz

tel      +49 (0) 1520 - 8006028
mail   anfrage@buntspeicher.com
web   www.buntspeicher.com

IMPRESSUM       DATENSCHUTZ     

© Copyright 2026. Alle Rechte vorbehalten.
Einstellungen gespeichert
Datenschutzeinstellungen

Wir verwenden Cookies auf unserer Website und verarbeiten personenbezogene Daten, um z.B. Inhalte und Anzeigen zu personalisieren oder Medien von Drittanbietern einzubinden.

Erforderlich*
Notwendige Cookies und Google Fonts zulassen damit die Website korrekt funktioniert.

Externe Medien
Externe Medien wie Google Maps und Youtube zulassen.

Statistik
Google Analytics zulassen.

You are using an outdated browser. The website may not be displayed correctly. Close