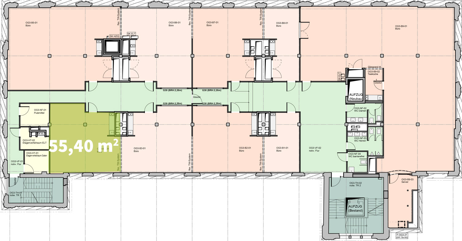
Die angebotene Gewerbeeinheit umfasst einen Raum im 3. Obergeschoss mit ca. 55,40 m². Das Büro verfügt über eine Kochnische. Die Bürofläche kann über einen Aufzug oder dem Treppenhaus erreicht werden. Die offene Grundrissgestaltung ermöglicht eine flexible Nutzung, angepasst an ihre individuellen Bedürfnisse. Große Fenster an den Außenwänden sorgen durch den Tageslichteinfall für helle Räume.
Alle Details auf einen Blick:
| Größe: | 55,40 m2 |
| Etage: | 3. Obergeschoss |
| Nutzung als: | Büro |
| Ausstattung: |
|
| Internetanschluss: | Glasfaser mit Singlemode und Kupferanschluss |
| Für alle frei nutzbar: | Drucker, Scanner, Kopierer ** Nutzung der Gemeinschaftsküche ** Toiletten Aufzug Fahrradständer ** zzgl. Verbrauch |
| Gegen Gebühr nutzbar: | E-Fahrzeug laden |
| Preis: | 332,40 € Kaltmiete * 293,62 € Betriebskosten Vorauszahlung* 626,02 € Warmmiete / Monat * |
*alle Preise zzgl. USt.